• Byggmann

227 – SKJONG

KLASSISK OG ROMSLIG

Med sine fem soverom og to stuer er Skjong en tradisjonsrik og klassisk familiebolig, med plass for hele storfamilien på sine 238 m². To fulle etasjer gir boligen mange spennende muligheter.

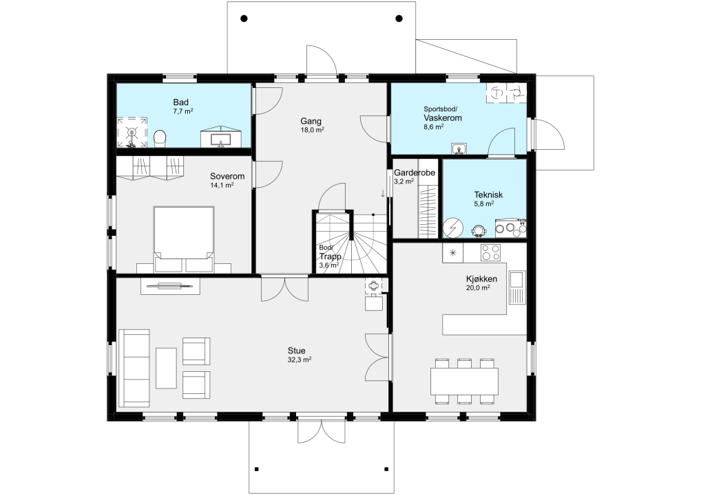
Den store entréen ønsker deg velkommen med rikelig plass til oppbevaring og trapp opp til andre etasje. Første etasje har i tillegg et bad, et stort soverom, en stue og et kjøkken. Vaskerommet har egen utgang, perfekt for familier med små barn.

I boligens andre etasje finner du store soverom, bad og gode garderobeløsninger. Den romslige loftstuen, med utgang til veranda, gir boligen flere soner for sosialt samvær og avslapning.

TEKNISK DATA

Bruksareal: 238,4, m²
Bebygd areal: 147,5 m²
Største lengde: 13,8 m
Største bredde: 12,6 m
Antall soverom: 5
Energimerking: Oransje - B

PLANTEGNINGER

1. ETASJE

2. ETASJE

FASADE

ØNSKER DU MER INFORMASJON?

FYLL UT SKJEMAET, SÅ KONTAKTER VI DEG FOR EN HYGGELIG BOLIGPRAT

    ARKITEKT

    ALT KAN TILPASSES FOR Å IMØTEKOMME DERES ØNSKER OG BEHOV

    Fordelene med å bygge et helt nytt hus, er at du kan få det akkurat slik som du vil. Trolig finner du en husmodell i vår katalog som kan passe, men kanskje ønsker du å tilpasse boligen etter egne ønsker og behov.

    Vi vil gjøre vårt ytterste for at du skal bli fornøyd, og hjelper deg hele veien fra idé til ferdig bolig. Vi har fagkunnskap og gir gode råd for at du skal få bygget en bolig som passer deg helt perfekt.»

    Trykk her for å lese mer om arkitekttjenester fra Byggmann.