• Byggmann

201 – EVO

VOKSER MED FAMILIEN

Evo er en fleksibel boligmodell tilpasset ulike livsfaser. Du kan begynne i det små og utvide når behovene endrer seg – med Evo+ får du en romslig bolig på hele 144,7 m². Den åpne og funksjonelle planløsningen gir deg stor frihet til å sette sammen boligen slik du ønsker – med ekstra stue, soverom, kontor eller carport.

Husets moderne uttrykk passer like godt i nye boligfelt som på landlige tomter. Evo gjør det enkelt å tenke både økonomisk og langsiktig – en smart løsning for deg som planlegger fremover, og ønsker et hjem som vokser i takt med familien.

TEKNISK DATA

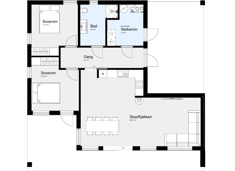
Bruksareal: 90,7 m²
Bebygd areal: 157,3 m²
Største lengde: 10,8 m
Største bredde: 12,1 m
Antall soverom: 2
Energimerking: Oransje - B

Innenfor arealgrensen til Husbanken

PLANTEGNINGER

FASADE

ØNSKER DU MER INFORMASJON?

FYLL UT SKJEMAET, SÅ KONTAKTER VI DEG FOR EN HYGGELIG BOLIGPRAT

    ARKITEKT

    ALT KAN TILPASSES FOR Å IMØTEKOMME DERES ØNSKER OG BEHOV

    Fordelene med å bygge et helt nytt hus, er at du kan få det akkurat slik som du vil. Trolig finner du en husmodell i vår katalog som kan passe, men kanskje ønsker du å tilpasse boligen etter egne ønsker og behov.

    Vi vil gjøre vårt ytterste for at du skal bli fornøyd, og hjelper deg hele veien fra idé til ferdig bolig. Vi har fagkunnskap og gir gode råd for at du skal få bygget en bolig som passer deg helt perfekt.»

    Trykk her for å lese mer om arkitekttjenester fra Byggmann.